CASA ETERNIT
Concurso Casa Urbana Eternit - Primer lugar
Arquitectos: LLONAZAMORA, Michelle Llona + Rafael Zamora
Ubicación: Lote tipo, lima.
Fecha del concurso: 2011
CONSTRUIR CON LA SOMBRA, EL PATIO Y EL PUENTE.
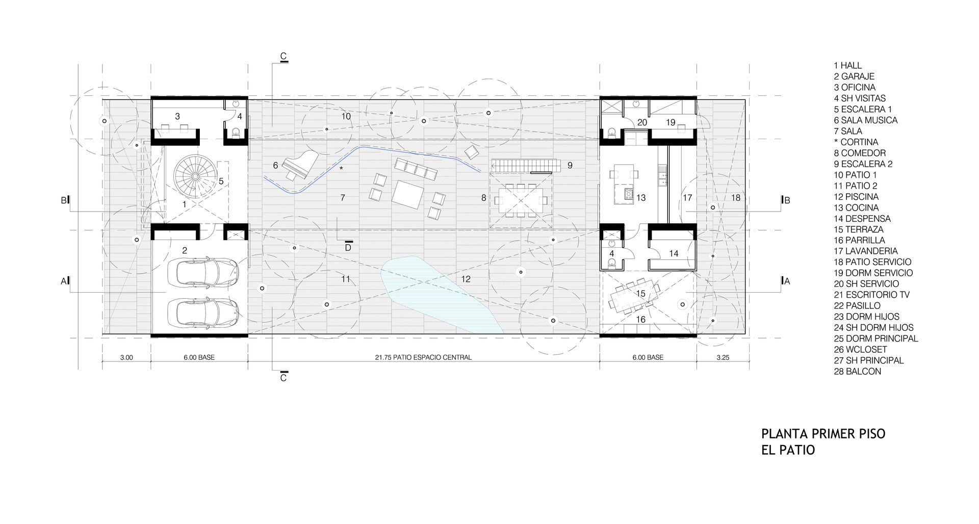
Una gran SOMBRA define un eje habitado, que avanza articulando la casa desde la calle hasta el espacio central y social. Este espacio flexible, se desborda hasta ocupar el ancho del lote, creando así, una especie de campo extendido en el que las funciones del área social pueden organizarse de múltiples maneras.
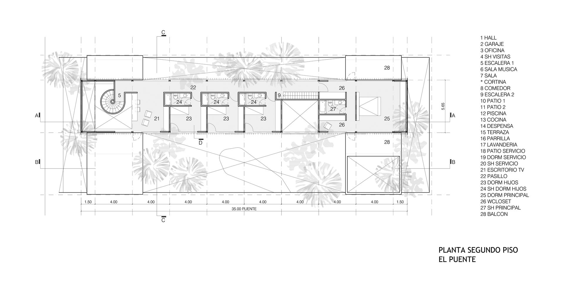
Mientras los almuerzos familiares avanzan tranquilos y alegres, o las grandes fiestas se expanden y se precipitan en los 315m2 de este espacio central, el puente protege del clima y contiene la vida tras la persiana vertical. Las habitaciones se asoman al patio; en un intercambio constante.









