EDIFICIO NAPLO
Vivienda temporal en balneario
Arquitectos: LLONAZAMORA, Michelle Llona + Rafael Zamora.
Ubicación: Urb. Naplo. Pucusana. Lima
Fecha del proyecto: 2009 - 2010
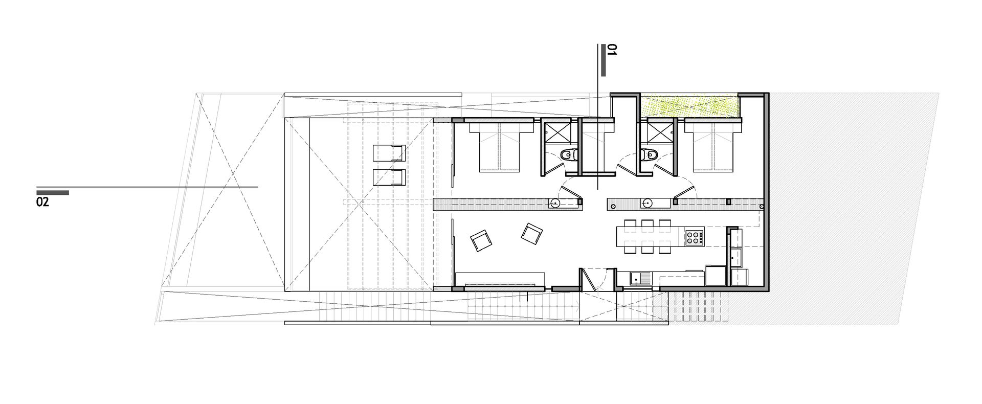
Tres departamentos se apoyan en el cerro, se aterrazan, se extienden hacia el mar y el sol. En la base, un zócalo de acceso, los estacionamientos y la entrada. Pasando la puerta de ingreso, una escalera al aire libre, como calle en pendiente, conduce a tres zaguanes. En el interior de cada casa un mueble longitudinal, organiza la vida entre las áreas sociales y las habitaciones. Las áreas sociales, a manera de loft, se extienden todas hacia la terraza y las habitaciones miran tímidamente al mar a través de unas teatinas horizontales.








