MACHUPICCHU MAPI
Centro de visitantes de Machupicchu
Arquitectos: LLONAZAMORA, Michelle Llona + Rafael Zamora.
Ubicación:
Distrito de Machupicchu, Provincia de Urubamba, Cuzco.
Fecha del proyecto: 2014 - 2016
El nuevo centro de visitantes MAPI será la puerta de ingreso al Parque Arqueológico Nacional de Machupicchu (PANM). El proyecto se ubica cruzando el río Vilcanota, en la base de la montaña, conectado a una serie de caminos (carretera, ciclo vía y rutas peatonales) que llevan a la ciudadela o llaqta de Machupicchu.
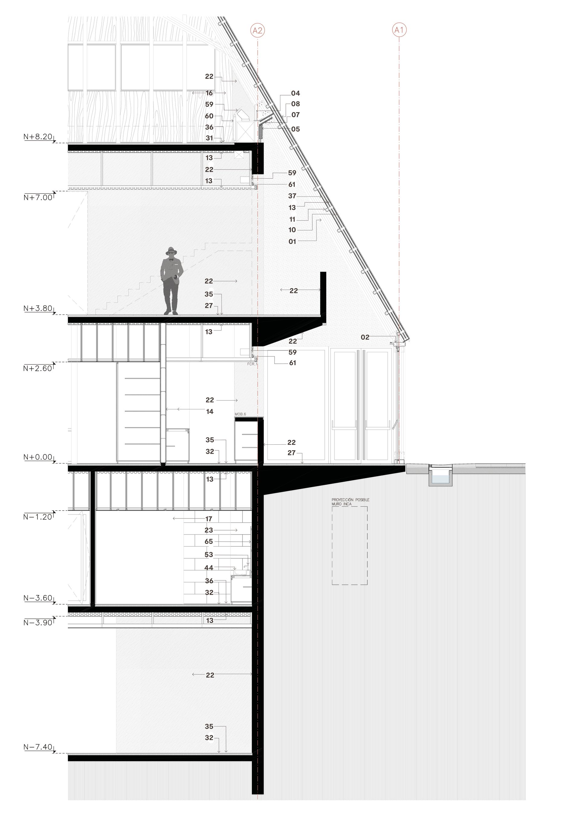
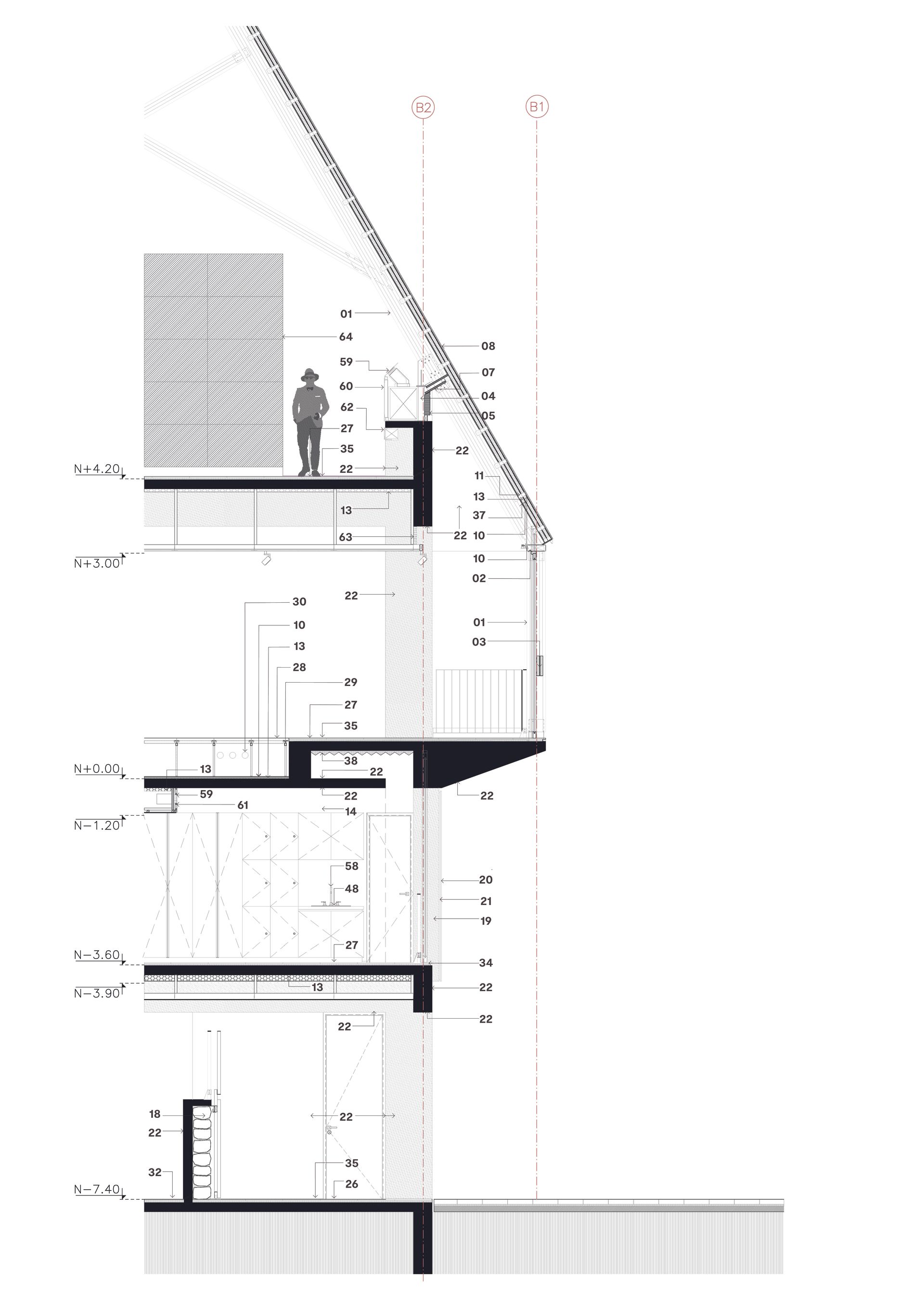
El programa arquitectónico se divide y se organiza en tres edificios principales conectados por diferentes plazas o terrazas. Este conjunto de tres estructuras mantiene la proporción observada en los hastiales inca de la Llaqta, techos que se insertan en el paisaje, abrazados por la geografía y la vegetación.
Bajo los techos de madera, un gran espacio alberga el programa público del centro de visitantes, reforzando una experiencia de interioridad en oposición a lo grandioso del paisaje exterior, y previo al espectáculo de la cumbre.
Las plazas se extienden sobre la topografía y enmarcan los muros incas existentes para ponerlos en valor e incluirlos en el recorrido turístico. Estas plazas relacionan los edificios entre si, articulando e integrando el Centro de visitantes con el paisaje y una serie de recorridos exteriores que ascienden a la Llaqta.
















