LABORATORIOS MONTANA IMBIOS
laboratorio de Investigación Molecular y Biociencia
Arquitectos: LLONAZAMORA, Michelle Llona + Rafael Zamora
Ubicación: Zona Industrial, Santa Anita - Lima.
Fecha del proyecto: 2016 -2017
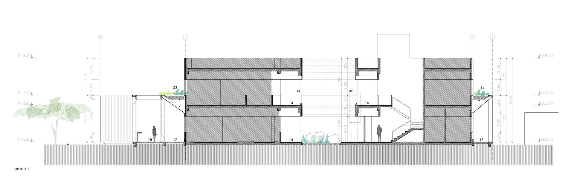
Los laboratorios especializados en naturaleza quedan rodeados por una galería y un jardín.
Galería: Un corredor se construye como claustro exterior, espacio conector indefinido que crea un enlace para todo el programa articulándose con el invernadero y transformándose en el atrio de ingreso.
Jardín: Vegetación de mantenimiento bajo, con bajo consumo de agua, para un jardín que busca re-enlazar a los científicos dentro de un nuevo ecosistema donde son solo uno más de los actores.














