TALLER DE CERÁMICA
Cotto Designs ceramic studio
Arquitectos: LLONAZAMORA, Michelle Llona + Rafael Zamora
Ubicación: Barranco, Lima, Perú
Fecha del proyecto: 2013 -2014
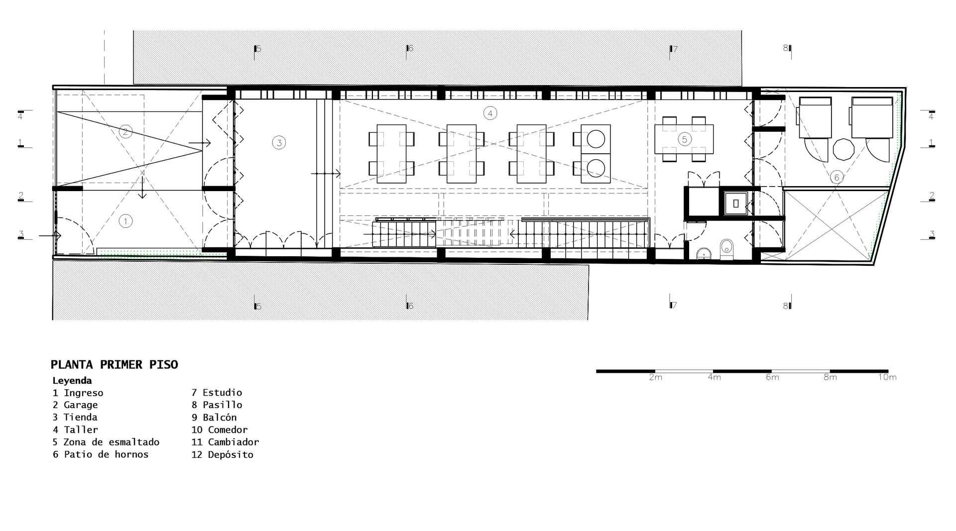
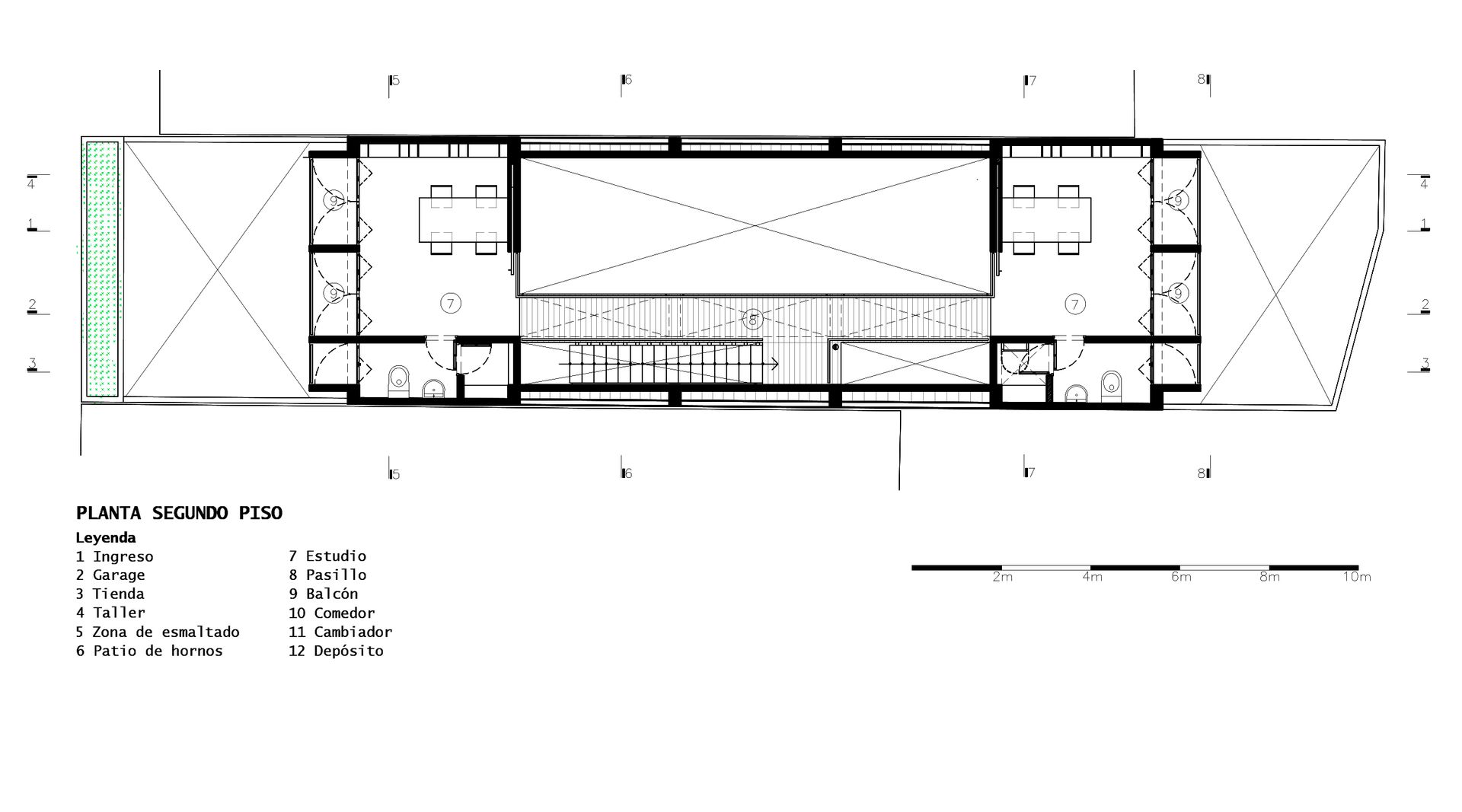
El taller de cerámica en Barranco, Lima, se encuentra en un terreno alargado con un frente angosto de 6 metros hacia la calle y un fondo de 30 metros. El proyecto considera dos alineamientos: uno en el límite de propiedad y otro a 5 metros del límite.
La edificación utiliza materiales sobrios como hormigón visto y carpintería metálica con portañuelas de madera. El espacio central es de doble altura y alberga el área de modelado en arcilla, conectando con otras partes del taller mediante escaleras y un puente.
Una estructura aporticada evita columnas en el centro del terreno, y una farola ilumina cenitalmente el espacio. Los patios, con fachadas mellizas, permiten relación con el exterior.






















